Saxton Close Grays Essex
Property Description
Offers in Excess of £255,000
Saxton Close, Grays, RM17
2 bedroom
coach house
*OPEN HOUSE SATURDAY 18th JUNE BETWEEN 1 & 3pm CALL TO BOOK A TIME SLOT!* Well-presented two double bedroom modern property with undercroft parking for 2 cars. Situated with in the newly constructed development of Saxton Close, within 0.6 miles of Grays Station and within easy reach of the A13/M25.
Key features:
- Undercroft Parking For Two Cars
- Double Glazed
- Open Plan Living Space
- Two Double Bedrooms
- Master Bedroom With Ensuite
- Separate Bathroom
- Only 4 Years Old Built 2012
Full description:
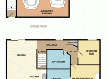
Entrance Hall:
Carpeted staircase leading to;
Lounge/Kitchen:
11’11 x 19’05 (3.65m x 5.94m)
Laminate wood flooring, smooth painted walls, sliding doors to rear with Juliette Balcony, window to front aspect, fitted Kitchen with integrated fridge freezer and washing machine, fitted oven and hob.
Hallway:
Laminate wood flooring, smooth plastered walls with built in storage cupboard and loft hatch.
Bedroom One:
11’08 x 9’09
(3.57m x 2.99m)
Window to front, smooth painted walls, carpet, fitted mirror wardrobes, door leading to;
Ensuite:
8’01 x 5’05
(2.47m x 1.68m)
Window to front, tiled walls and floor, walk in shower, floating hand basin and WC.
Bedroom Two:
10’04 x 9’05
(3.15m x 2.88m)
Window to rear, smooth painted walls and carpet.
Bathroom:
7’02 x 5.06
(2.19m x 1.69M)
Tiled and plastered walls, Bath, sink and WC
Undercroft off road parking for two cars:
Tenure: Freehold
Service Charge £ 15.00 Per Month
Council Tax Band C

