Milton Road
Property Description
OIRO £277,500. NO ONWARD CHAIN! Located only 500m from Gable Hall School, Stanford & Corringham Sixth Form College, Performers College and also within walking distance of Giffards Primary School, Essex Estates are delighted to offer this three bed end of terrace property in a popular location.
Key features:
- Popular Location
- No Onward Chain
- Ground Floor WC
- Three spacious bedrooms
- Double Glazed
- Gas Central Heating
- Overlooking Field To Rear
- Off Road Parking To Front
Perfect Location For A Family Home. Situated Within Easy Access to The A13, Walking Distance To Bus Routes, Within Close Proximity of Corringham Town Centre and Stanford Le Hope Train Station.
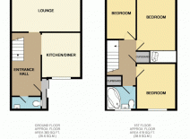
The ground floor offers,
Spacious entrance hallway, WC, lounge and fitted kitchen/Diner
Externally, the rear garden offers a large decked area with shed to the rear and side access. The front of the property offers a blocked pave drive for off road parking.
The first floor offers,
Fitted bathroom and three good sized bedrooms with the master bedroom offering built in wardrobes.
GROUND FLOOR
ENTRANCE PORCH: 5’11” X 1’11” (1.83m X 0.60m)
Sliding double glazed door, tiled walls and flooring.
ENTRANCE HALL: 18’10” X 6’04” (5.74m X 1.94m)
Spacious entrance hall, tiled flooring with underfloor heating, smooth papered and painted walls with dado rail, papered and white painted ceiling with white coving
KITCHEN/DINER: 14’10” X 9’ (4.53m X 2.76m)
Opening from the entrance hall, tiled flooring with underfloor heating, fitted wall and base units, laminate work surface, stainless steel sink and drainer, double glazed window to front.
LOUNGE: 15’10 X 11’05 (4.85m X 3.50m)
Fitted carpet, papered walls with dado rail, papered and white painted ceilings with decorative coving, double glazed window to rear and sliding patio door leading out to the rear garden.
WC: 5’07” X 2’07” (1.72m X 0.79m)
Tiled walls, white painted artex ceiling and window opening onto the porch.
FIRST FLOOR
BEDROOM ONE: 13’07” X 9’01” (4.16m X 2.77m)
Laminate flooring, built in wardrobes, decorative papered walls with dado rail, artex ceiling with coving and window to the rear with views overlooking the fields.
BEDROOM TWO: 10’06” X 9’01” (3.21m X 2.78m)
Laminate tile effect flooring, smooth papered and painted walls, textured papered ceiling with coving and double glazed window to front.
BEDROOM THREE: 10’06” X 6’06” (3.22m X 1.99m)
Laminate flooring, papered walls with dado rail, textured papered ceiling with coving and double glazed window to rear overlooking fields.
BATHROOM: 6’04 X 5’05” (1.95m X 1.67m)
White tiled flooring, tiled walls, artex ceiling with coving, corner bath with shower attachment, toilet and sink.
We understand that mains water, drainage, gas and electricity are connected to the property.
Essex and Suffolk Water; www.eswater.co.uk
Anglian Water; www.anglianwater.co.uk
Thurrock Borough Council; www.thurrock.gov.uk
Council Tax; Band C
Tenure; Freehold
MONEY LAUNDERING REGULATIONS: Prospective purchasers will be asked to produce photographic identification and proof of residence documentation once entering into negotiations for a property in order for us to comply with current Legislation. We would ask for your co-operation in order that there will be no delay in agreeing the sale.
General: While we endeavour to make our sales particulars fair, accurate and reliable, they are only a general guide to the property, if there is any point which is of particular importance to you, please contact the office and we will be pleased to check the position for you, especially if you are contemplating travelling some distance to view the property.
Measurements: The dimensions are approximate and are only intended for a general guide as are floor plans which are not to scale. Please do not use these measurements when ordering carpets and any built- in furniture.
Services: Please note, we have not tested any apparatus, equipment, fittings or services and so cannot verify that they are in working order, nor have we made any of the relevant enquires with the local authorities pertaining to planning permission and building regulations. The buyer is strongly advised to commission their own survey and obtain verification from their solicitor before finalising their offer to purchase.



